Villalola

Alburquerque, Badajoz, ES2013 – 2014

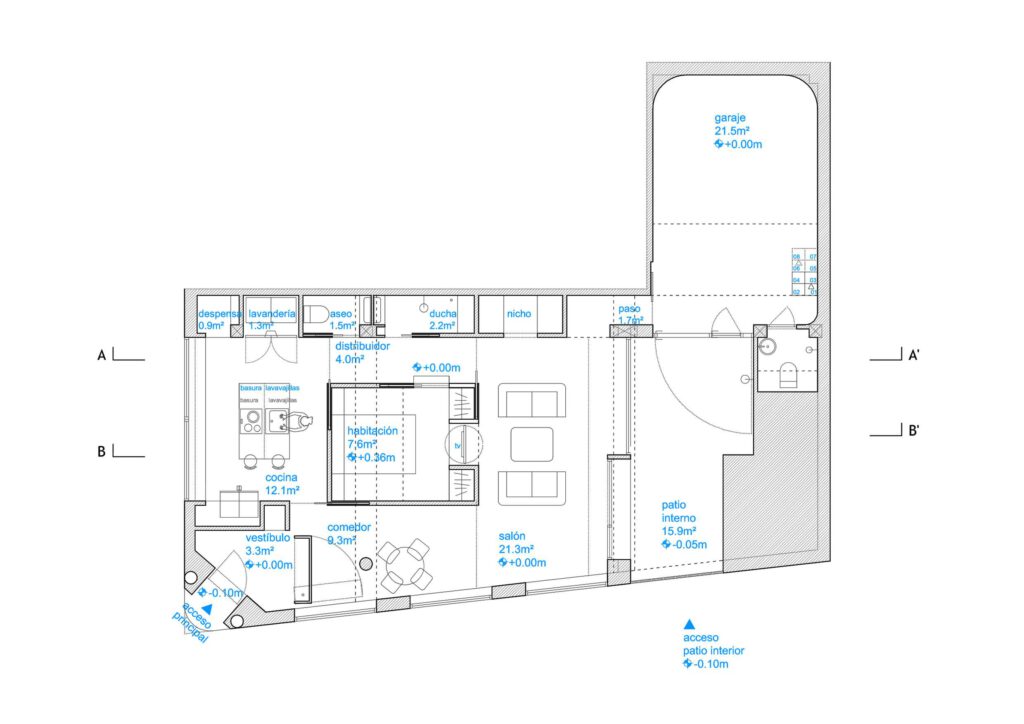
A shop in expansion of a rural town becomes an oniric, auto-referenced realm. A band of services (pantry / laundry / toilet / shower …) isolates the main space from the noise in the neighbouring premises. Each of these mini-uses has its own threshold, unfolding a highly specific catalog of doors.

The rest of the local is free: only a cork box on wheels (the main bedroom), and presents different fronts (a mirror-table, a swivel TV, a door …) to spaces adjacent. Thus, the mobile room is able to resize the different spaces of the loft depending on each occasion.

A sort of covered patio connects the main space with another generic, deregulated space, where yoga, dance or meditation can coexist with such functions such as work, storage or…

Client

Lola

Surface

<250m²

Consultants

Contractor: Edificaciones Rodríguez S.L.L.

Contributors

Aránzazu Montero
Beatriz G. Lazo